```json ```

Leave a Message

Thank you for your message. We will be in touch with you shortly.

201 Sunset Drive

$625,000
201 Sunset Drive, Oak Harbor, WA 98277

201 Sunset Drive

$625,000

PRICE IMPROVEMENT! Discover your dream oasis on this fully fenced, sunny, expansive level acreage, perfectly positioned near town, base, parks, and beaches. This beautifully maintained home boasts lush lawns, a charming 2-stall stable and paddock for your animals, garden plots, a circular drive, a wooded area for privacy, plus fruit trees! Inside, enjoy modern upgrades like a newer furnace, fridge, stove, dishwasher, wood stove, and hot tub, and a roomy and flexible floor plan. The spacious 3-car garage features epoxy flooring and versatile dual exits. Just minutes from everything yet offering private tranquility, this inviting retreat is ready for your personal touches. Watch the video to see more, your forever home awaits!
Mike Konopik Contact

Features & Amenities

Interior

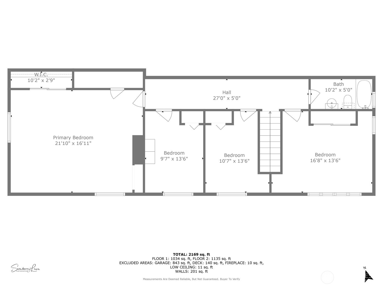
Total Bedrooms 4
Total Bathrooms 2
Full Bathrooms 1
Three Quarter Bathrooms 1
Flooring Ceramic Tile, Laminate, Carpet
Fireplace Wood Burning
Appliances Dishwasher(s), Dryer(s), Microwave(s), Refrigerator(s), Stove(s)/Range(s), Washer(s)
Other Interior Features Bath Off Primary, Dining Room, Fireplace, Skylight(s), Water Heater

Exterior

Stories 2
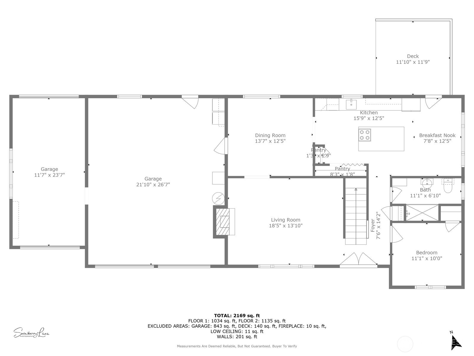
Garage Space 3.0
Water Source Community
ROOF Composition
Lot Features Paved
Parking Attached Garage, RV Parking
Heat type Forced Air, Stove/Free Standing
Air Conditioning None
Sewer Septic Tank
Substructure Poured Concrete
Security Features Fully Fenced
Other Exterior Features Wood

Area & Lot

Status For Sale
LIVING SPACE 2,056 Sq.Ft.
TOTAL AREA 2,056 Sq.Ft.
LOT SIZE 2.59 Acres
MLS® ID 2422486
Type Residential
Year Built 1970
Architecture Styles Colonial
View Description Mountain(s), Territorial
ELEMENTARY SCHOOL Buyer To Verify
MIDDLE SCHOOL Buyer To Verify
HIGH SCHOOL Buyer To Verify
School District Oak Harbor

Financial

SALES PRICE $625,000
REAL ESTATE TAXES $3,876/yr

Work With Mike

From home selection through the offer, negotiation, inspection, and closing, he offers constant and professional communication to achieve the best result for you!

Let's Connect